
Застройщик готов рассмотреть покупку в ипотеку — если, конечно, банк одобрит кредит на такую сумму
На берегу Оби в Барнауле выставили на продажу квартиру, которая больше похожа на отдельный этаж, чем на обычное жилье. Речь идет о семикомнатных апартаментах в будущей новостройке на площади Баварина — ценник впечатляет: 75 миллионов рублей.
Домов пока нет, но планы масштабные. На этом участке застройщик "Селфстроит" собирается возвести жилой комплекс под названием "Барнаул" — две высотные башни "Столица" и "Мира". Оба здания поставят на высокий стилобат — фактически общую платформу высотой до третьего этажа. Проектом предусмотрены прогулочная зона вдоль берега и так называемый "воздушный пирс" — лестница со смотровой площадкой и видом на реку.

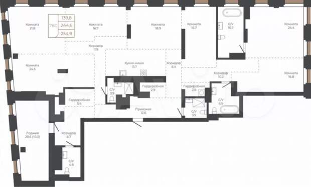
Самая дорогая квартира в этом комплексе находится на 26-м этаже одной из башен. Всего в домах будет по 27 этажей, так что будущим владельцам достанется почти панорамный уровень. Площадь жилья — 253 квадратных метра, потолки — 3,5 метра. Окна выходят на улицу, санузел заявлен как совмещенный.
По цене это рекорд именно для набережной Оби, хотя в Барнауле можно найти и более дорогие объекты. При этом застройщик готов рассмотреть покупку в ипотеку — если, конечно, банк одобрит кредит на такую сумму.
Пока что это жилье существует лишь на бумаге и в визуализациях, но интерес к нему уже есть: редкое предложение, вид на реку и статус "самой дорогой квартиры на Оби" делают свое дело.
Ранее сообщалось, что в Барнауле изымают под снос аварийную двухэтажку на улице Гулькина.
Мошенники дважды продали квартиру сироты из Москвы и оставили ее без жилья

Свежие комментарии